• Hello
  • Residential
  • Hospitality
  • Services
  • Chat
HANDWERK ART AND DESIGN

HANDWERK ART AND DESIGN

  • Hello
  • Residential
  • Hospitality
  • Services
  • Chat

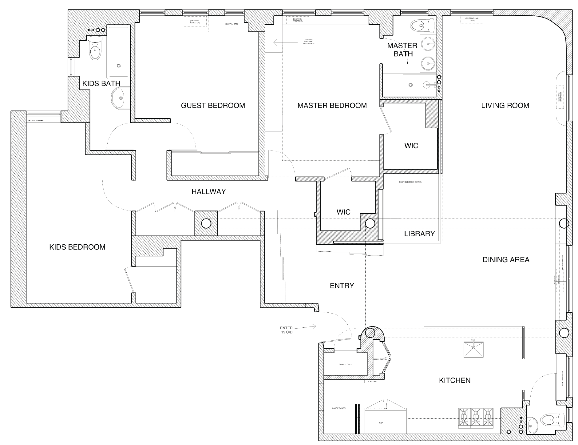
IN DEVELOPMENT: Greenwich Village Combo

Combining two Greenwich Village apartments units into one home.

Design began April 2019.
Construction began June 2021.

Screen Shot 2020-01-13 at 9.25.30 AM.png
Chair - 1.jpg
Chair - 2.jpg
LR 1 - 1.jpg
Bronze Door Full View.jpg
Master Bedroom 1.jpg
MB Corner View.jpg
Option 1.jpg
Screen Shot 2020-01-13 at 9.36.09 AM.png

Powered by Squarespace.